Ein „Perfect Plan“ schafft Mehrwert – nicht nur optisch, sondern auch wirtschaftlich. Gut strukturierte Flächen steigern die Wohnqualität, erhöhen die Effizienz der Nutzung und tragen maßgeblich zu einer höheren Wertigkeit und besseren Vermarktung bei.

Ich entwickle Grundrisse, die jeden Quadratmeter optimal ausschöpfen – mit klarer Logik, Sinn für Proportionen und einem feinen Gespür für Ästhetik. So entstehen Raumkonzepte, die funktionieren, begeistern und langfristig überzeugen.

Eine große Leidenschaft meines Berufes und gleichzeitig eine der größten Schwachstellen bei vielen Planungen!

Paketpreise im Überblick

Perfect Plan Preise

20 m² bis 80 m² € 22,-/m² inkl. MwSt.*
80 m² bis 150 m² € 20,-/m² inkl. MwSt.*
150 m² bis 300 m² € 18,-/m² inkl. MwSt.*
ab 300 m² € 14,-/m² inkl. MwSt.*

* Paketpreis richtet sich nach Raumgröße und Bestand an Möbeln. Zur Realisierung eines Basispakets benötigen wir eine Vorlage aktueller Pläne.

 

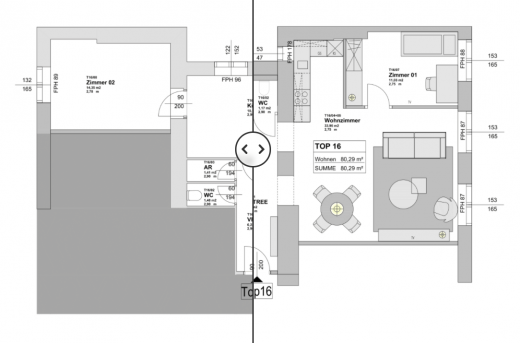
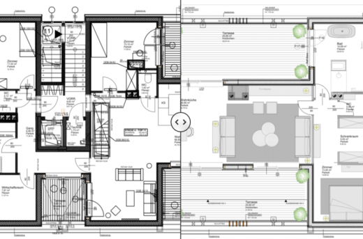
„Perfect Plans“ von bereits umgesetzen Immobilien -
vorher und nachher!