Deprecated: Creation of dynamic property modX::$guzzle7 is deprecated in /srv/users/christinebuzzi/apps/christinebuzzi/public/core/xpdo/xpdo.class.php on line 1238
TrIIIple - Penthouse - Christine Buzzi | Interior Design
Perfect Plan Smart Concept Luxury Concept Business Concept Über mich
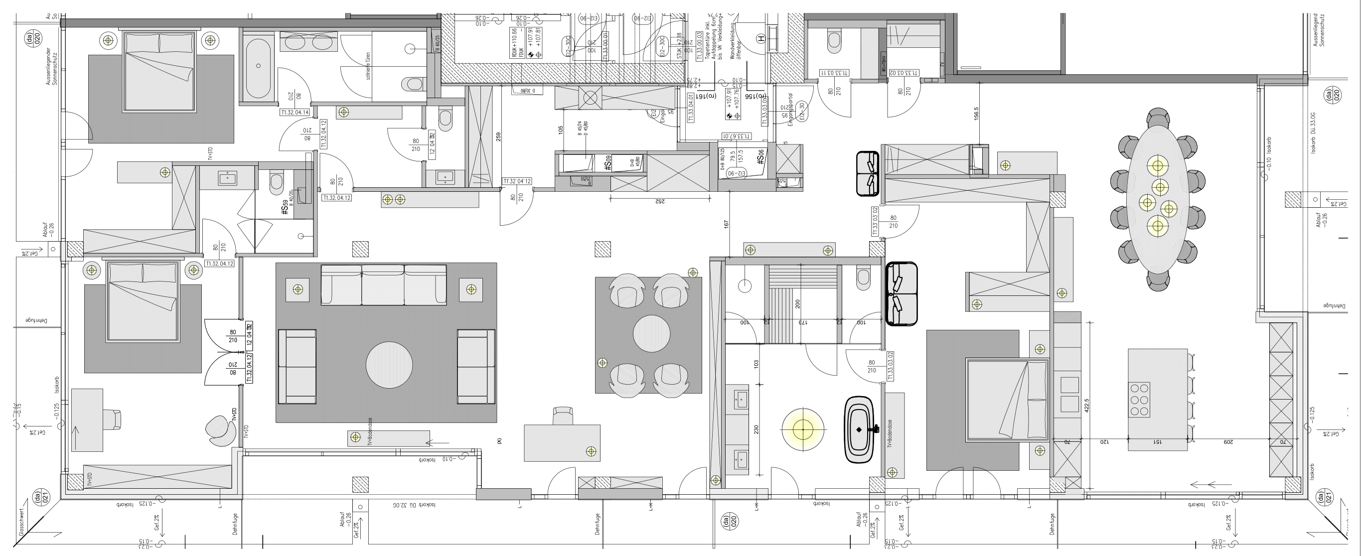
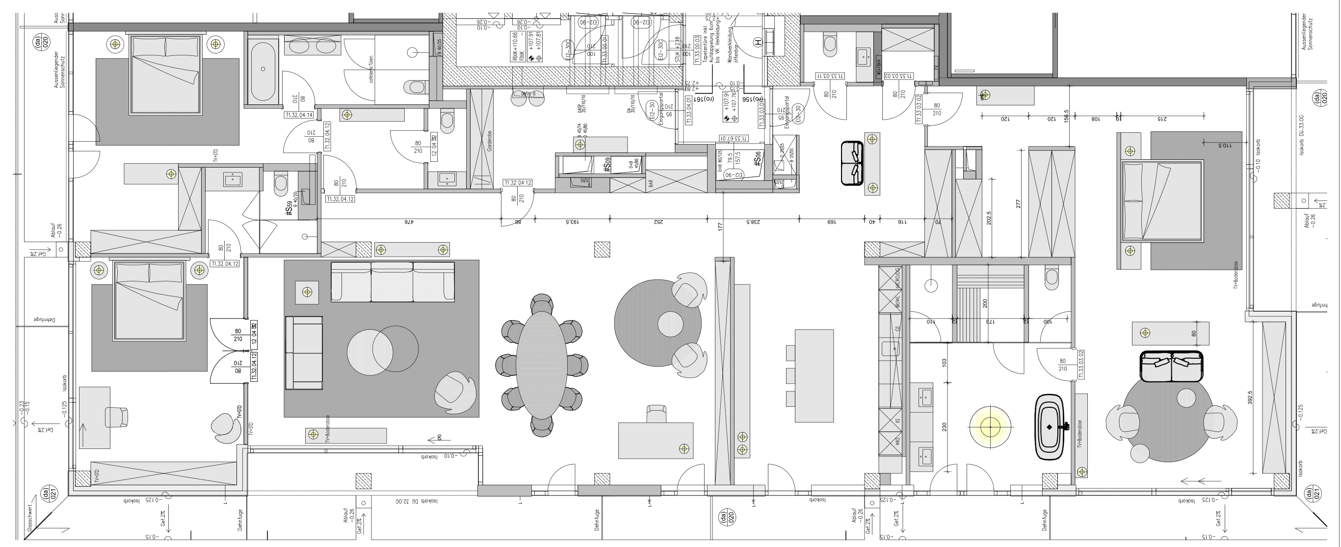
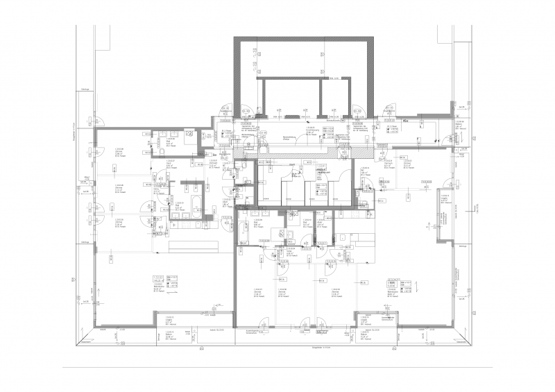
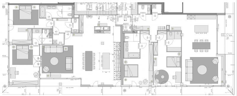
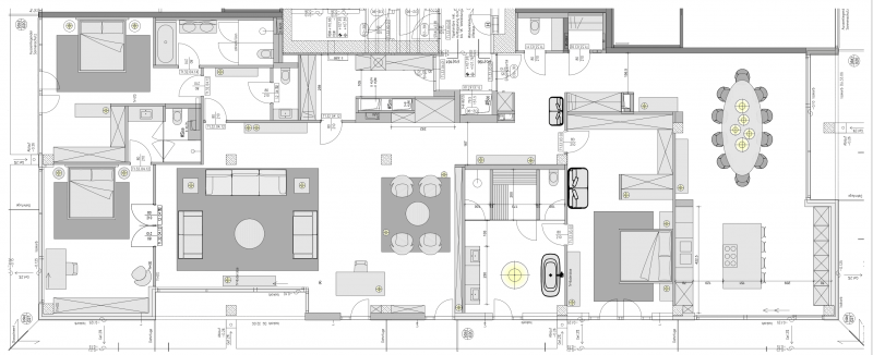
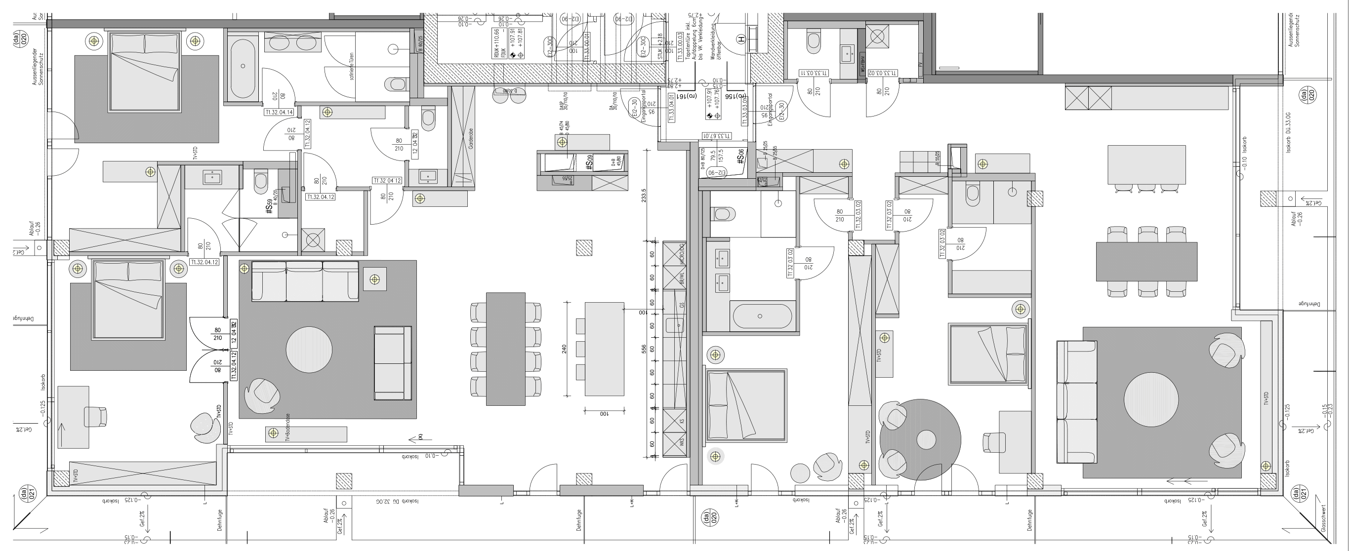
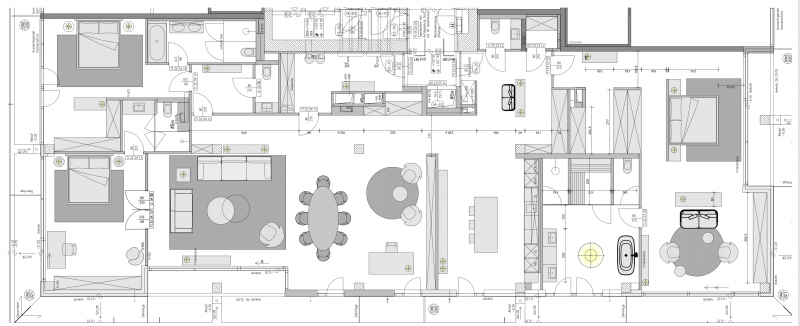
Grundrissoptimierung

TrIIIple - Penthouse


Für einen Kunden durfte ich exklusive Wohnkonzepte für eine der obersten Etagen des Triiiple Towers der Soravia Gruppe entwickeln.

Entstanden sind drei Varianten einer Traumwohnung mit spektakulärem Panoramablick über die Stadt – ein Ausblick, der schlicht atemberaubend ist.

Alternativ wurden im selben Bereich zwei eigenständige Wohnungsentwürfe ausgearbeitet, um maximale Flexibilität in der Planung zu ermöglichen.

 - Vorher-Bild  - Nachher-Bild